連鎖酒店集團Fraser Hospitality旗下的大阪南海輝盛庭國際公寓(Fraser Residence Nankai Osaka),位於機鐵「南海難波站」旁,鄰近大阪METRO「難波站」、近鐵「大阪難波站」交通方便。鄰近心齋橋筋商店街 、道頓堀 、難波商圈 、南堀江 ,週邊有超級市場、百貨公司、購物商場配套齊全!最重要是服務式公寓房間設施齊全(有全套廚房),空間寛敞,推介給家庭旅客!
地址:〒556-0011 大阪府大阪市浪速区難波中1丁目17-11
交通:南海電鐵「難波站」步行3分鐘、大阪METRO「難波站」步行5分鐘
機場交通:乘搭南海電鐵「難波站」中央出口步行約3分鐘
CHECK-IN:14:00|CHECK-OUT:12:00
大阪南海輝盛庭國際公寓共有 114 間客房大致分為三款:Sutdio(單間公寓 28平方米)、One Bedroom(一房公寓 40平方米)和Two Bedroom(兩房公寓 77平方米),房間面積28~77平方米,比一般商務酒店18~20平方米要大得多!每間房均帶全套傢俱,配備客飯廳、廚房和臥室,廚房設備完善備有煮食用品、餐具等,更設有洗衣機和烘乾機,一家大小出遊就更方便!
‣ Sutdio(單間公寓 28平方米)
28平方米(301平方呎)的 Sutdio(單間公寓)雖然沒有分開客廳和臥室,但備有煮食用具和餐具齊全的廚房和浴室,可以選擇一張雙人床(Double)或兩張單人床(Twin)。
Sutdio(單間公寓 28平方米)
Sutdio(單間公寓 28平方米)
Sutdio(單間公寓 28平方米)
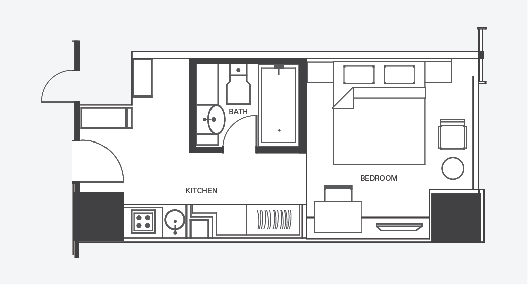
‣ One Bedroom(一房公寓 40平方米)
40~44平方米(431~474平方呎)的 One Bedroom(一房公寓)設有臥室、客飯廳、廚房、浴室。
客廳|One Bedroom(一房公寓 40平方米)
臥室|One Bedroom(一房公寓 40平方米)
臥室|One Bedroom(一房公寓 40平方米)
平面圖|One Bedroom(一房公寓 40平方米)
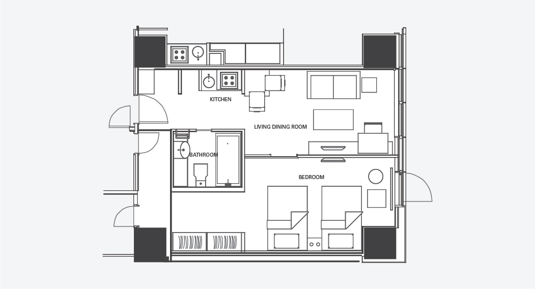
‣ Two Bedroom(兩房公寓 77平方米)
77平方米(829平方呎)的 Two Bedroom(兩房公寓)設有2間臥室、客飯廳、廳房和2個浴室,多人入住也不用擔心要輪候廁所的問題。
客廳|Two Bedroom(兩房公寓 77平方米)
飯廳|Two Bedroom(兩房公寓 77平方米)
臥室|Two Bedroom(兩房公寓 77平方米)
臥室|Two Bedroom(兩房公寓 77平方米)
廚房的煮食用具及餐具整全|Two Bedroom(兩房公寓 77平方米)
‣ 行政樓層(Executive Floor)
租住升級行政樓層(高層),除了可以飽覽城市美景,更可以享用京都Coffee Artisans的小川咖啡和日式浴鹽!有小朋友的話可向櫃檯免費借用費嬰兒床和享用3~12歲免費兒童備品(非行政樓層住客可以1,080円租用嬰兒床)。
29%OFF!香港機場快線車票
即買即用,掃QR Code直接入閘!
文章導覽
在開始大阪旅行之前,建議參考這篇完整的大阪自由行攻略,好好做好行前準備,讓你的大阪旅行體驗更順暢!無論是初次大阪旅遊,或是再次造訪,這篇大阪旅遊攻略幫你整理了各種實用資訊,讓你出發前就有信心
以下是一些重要的行前須知:
行前須知
最佳旅遊季節
大阪四季皆宜,但以春秋兩季最為舒適。春季(3-4月)櫻花盛開,大阪城公園等地美不勝收;秋季(10-11月)氣候涼爽怡人,可以欣賞銀杏與紅葉美景,是大阪旅行的黃金季節。夏季有盛大的天神祭與煙火大會等祭典活動,但較炎熱濕潤;冬季氣溫較低,街頭有燈光秀和年末慶典,讓大阪自由行一年四季都有不同亮點。
簽證與入境
日本對多數地區的旅客提供短期免簽待遇(如持台灣、香港護照可免簽停留90天)。不過建議在出發前確認最新的簽證規定和入境措施。大阪關西國際機場(KIX)是主要入境口岸,入境流程便捷,設有中文指引,讓大阪自由行旅客也能輕鬆通關。
貨幣與支付
日本使用日圓(JPY)。大阪旅行期間建議備有現金以應付小店或市集購物,亦可使用信用卡或行動支付。大阪自由行中常去的便利店、百貨公司與餐廳多支援非現金交易。旅客也可在機場、便利店的ATM提取日圓。特別提醒,日本不少商店提供消費滿額退稅服務,記得隨身攜帶護照以便辦理退稅。
語言溝通
大阪當地使用日語關西方言,但在主要觀光區工作人員多多少少能以基本英語或中文溝通。路標、地鐵站名等在繁體中文地圖上也多有標註。建議下載翻譯App或離線地圖,方便您的大阪自由行。
預算規劃
大阪旅行的費用取決於行程長短與個人喜好。一般大阪自由行來說,中等預算的旅客每日花費(含住宿)約日圓1萬-1萬5千圓不等。若計畫血拚購物或品嚐高級美食,可酌情增加預算。提前預訂機票與住宿通常能找到優惠,使用大阪旅遊攻略中提到的折扣券也能節省開支。
上網與通訊
建議在出發前準備好網路方案,如日本SIM卡或攜帶Wi-Fi分享器。在大阪市內,許多飯店、咖啡店及大型商場提供免費Wi-Fi,但為了確保隨時上網查詢大阪旅遊攻略資訊、地圖及翻譯,還是自備網路比較安心。
大阪自由行攻略:交通篇
順利抵達大阪並在市區內移動,是大阪自由行成功的關鍵之一。如果你正在找一份實用的大阪自由行攻略來規劃交通路線,以下這些資訊絕對不能錯過。要暢遊各大大阪旅遊景點,熟悉交通工具是第一步。
到達大阪的方式
飛機: 多數旅客會從香港或台灣直飛關西國際機場(KIX)。從機場前往大阪市中心可搭乘JR關空特急Haruka、南海電鐵或利木津巴士,約40~60分鐘即可到達,是大阪自由行的重要交通起點。
新幹線與火車: 從東京、名古屋、京都等地搭乘東海道新幹線快速抵達新大阪站,是跨縣市大阪旅行的好選擇。
高速巴士: 從日本其他城市出發也可搭乘高速夜行巴士至大阪,適合預算型自由行旅客。這也是不少背包客推薦的大阪自由行攻略之一。
大阪市內交通
地鐵與私鐵: 大阪市內有多條地鐵與私鐵線路,如御堂筋線、阪急電鐵與近鐵等。建議購買ICOCA儲值卡或大阪周遊卡作為大阪自由行期間的交通工具。這些卡片在各大交通系統間通用,是許多大阪旅遊攻略中推薦的省時方式。
大阪周遊卡: 是大阪自由行攻略中的省錢法寶,可享交通一日/二日無限搭乘,並包含熱門景點門票,如通天閣、大阪城天守閣等,非常適合首次造訪大阪自由行的旅客。
觀光船與水上巴士: 若想用不同視角欣賞大阪旅遊風景,可選擇乘搭Aqua-Liner觀光船,享受悠閒水上遊覽,這種玩法在不少大阪自由行攻略中都被視為拍照打卡的秘密景點!
大阪自由行攻略:景點篇
大阪旅遊最吸引人的莫過於景點多樣,從歷史文化、購物娛樂到親子設施應有盡有。以下大阪自由行攻略將帶你一覽經典必去的熱門地點,適合初訪或回訪的你,按圖索驥更容易安排旅程。立即收藏這篇大阪旅遊攻略,輕鬆玩盡大阪必去景點!
大阪城 & 大阪城公園
作為大阪旅遊經典地標,大阪城不但是歷史名城,也是遊客必訪景點之一。由豐臣秀吉於16世紀建造的壯麗天守閣歷經戰火重建,如今內部設有博物館,收藏豐富的歷史文物。登上天守閣頂層,能俯瞰大阪市區景色。周圍的大阪城公園四季各有風情:春天櫻花盛開時,園內超過3000株櫻花樹將古城點綴得浪漫非凡;秋天楓紅與銀杏交織,又是另一番美景,絕對值得列入你的大阪自由行攻略清單。
道頓堀 & 心齋橋筋商圈
想體驗大阪旅行必去的購物與美食天堂,絕對不能錯過道頓堀。這條運河兩岸充滿霓虹招牌與美食餐廳,其中最著名的莫過於道頓堀上方那巨大的固力果跑跑人霓虹燈和機械螃蟹招牌,已成為大阪旅遊經典地標。在道頓堀沿岸,您可以品嘗章魚燒、螃蟹、拉麵等大阪美食,感受所謂「大阪味道」的魅力。這裡也是許多大阪自由行攻略推薦的打卡地點之一。相鄰的心齋橋筋商店街是大阪最大的購物街,長達600公尺的拱廊街匯集各式服飾店、藥妝店與精品百貨,是購物者的天堂。
日本環球影城(USJ)
這座主題樂園在多數大阪旅遊攻略中都佔據重要篇幅。日本環球影城是大阪乃至全日本最受歡迎的主題樂園之一,適合親子與情侶自由行。園內分為多個主題區域,擁有世界級的遊樂設施和表演,包括哈利波特魔法世界、超級任天堂世界(瑪利歐主題園區)等新舊經典景點。刺激的雲霄飛車、身歷其境的3D劇院與盛大的遊行,是每篇大阪自由行攻略強烈建議預留一整天遊玩的地點。
大阪海遊館
位於大阪灣區天保山的海遊館是世界最大規模的水族館之一,是親子同遊最適合的選擇,也經常出現在親子向的大阪自由行攻略中。館內展示來自環太平洋火山帶的數百種海洋生物,包括鯨鯊、企鵝與海獅等。漫步在螺旋通道彷彿進入海底世界,旁邊的天保山摩天輪更讓你在空中飽覽大阪旅行風光。
通天閣與新世界
通天閣是大阪另一處地標塔,最初建於1912年(後毀於戰火,1956年重建)。登上觀景台可360度眺望大阪市景。塔下的新世界(Shinsekai)街區充滿濃濃的懷舊氛圍,街道兩旁布滿昭和時代風情的店家和平價小吃,也是不少大阪自由行攻略中推薦晚上前往的地區。其中最有名的要屬新世界的串炸(炸串)料理,隨處可見掛著串カツ招牌的老店,例如知名的「Daruma串カツ」等。手拿酥脆熱騰騰的串炸,再配一杯冰啤酒,最能體會大阪人豪爽的飲食風格。
梅田藍天大廈(空中庭園)
位於梅田地區的藍天大廈以前衛的建築造型聞名,由兩棟高樓在頂層以天橋連結而成。大廈頂層的空中庭園展望台是欣賞大阪城市景色的絕佳去處:白天可遠眺大阪平原,夜晚則能俯瞰繁華都市燈海,此處亦入選「日本夜景百選」。大廈地下還有復古昭和風情的美食街「滄浪之小徑」,彷彿穿越時空回到昔日的大阪街頭,很多大阪旅遊攻略都建議晚上來這裡看城市燈火。
阿倍野HARUKAS摩天大樓
高達300公尺的阿倍野HARUKAS是日本最高的摩天大樓,就在天王寺區。除了樓內有百貨公司、美術館,遊客還可搭乘高速電梯直達58-60樓的「HARUKAS 300」展望台。透過四周巨大的落地玻璃,可以將大阪市區乃至明石海峽的景色一覽無遺。黃昏時分站在這裡欣賞夕陽餘暉、城市燈光漸次點亮,景色十分震撼。頂樓還設有空中花園和咖啡座,是約會與眺望夜景的熱門地點。
黑門市場
有「大阪廚房」美譽的黑門市場是饕客的天堂,超過170家攤販雲集在一條長廊下,販賣大阪在地的新鮮食材和美味小吃。從肥美的海鮮、生魚片、壽司,到水果、和牛燒肉、日式甜點,遊客可一邊逛一邊大快朵頤各式美味。市場內也有乾貨雜貨店,可以選購將大阪味道帶回家的伴手禮。黑門市場鄰近難波和日本橋電器街,地點方便,是大阪自由行必去的美食朝聖地。
傳統文化景點
除了現代都會風情,大阪也有豐富的傳統文化等待探索。歷史悠久的四天王寺是日本最古老的佛教寺院之一,由聖德太子於593年創建,每月21日的廟會市集吸引許多香客與觀光客前往。住吉大社則是全日本歷史最悠久的神社之一,其獨特的建築樣式(住吉造)和優美的太鼓橋聞名,是祈求航海平安與求子祈福的靈驗神社。若時間充裕,不妨造訪這些寺社古蹟,感受大阪靜謐沉穩的一面。
近郊一日遊
大阪地處關西中心,周邊有許多精彩的近郊目的地值得一並造訪。大阪自由行最熱門的選擇包括古都京都(搭JR新快速電車約30分鐘直達)和可愛的鹿之都奈良(搭近鐵電車約40分鐘直達)。在京都可欣賞金閣寺、清水寺等世界遺產古蹟;在奈良則能近距離與梅花鹿互動,漫步東大寺和春日大社等名勝。如果時間充裕,也可以安排到神戶、和歌山等地或前往大阪以北的萬博紀念公園(1970年大阪世博會舊址,園內有岡本太郎創作的太陽之塔),甚至把握機會參觀預定於2025年在夢洲舉辦的大阪關西世界博覽會(EXPO 2025)。只要彈性安排行程,根據大阪自由行攻略靈活規劃,就能把這些關西地區的精華景點一網打盡!
大阪自由行攻略:美食篇
大阪美食豐富多樣,從街頭小吃到高級料理應有盡有。大阪更有「食倒れ」(吃到破產)的稱號,足見其美食魅力。以下是大阪自由行必食的幾項特色美食:
章魚燒(Takoyaki)
章魚燒可說是大阪的象徵小吃。將麵糊中加入章魚塊、蔥花和天婦羅碎末,烤成外酥內軟的球狀,再淋上濃郁醬汁、美乃滋,撒上海苔粉與柴魚片食用。熱騰騰的章魚燒鮮香可口,讓人一吃難忘。在大阪街頭隨處可見章魚燒攤,特別是道頓堀周邊如「甲賀流」或「くくる」等知名老店門口常大排長龍。記得小心燙口,體驗所謂「貓舌」(怕燙)吃章魚燒的樂趣!
大阪燒(御好燒)
大阪燒是一種將麵糊混合高麗菜絲、豬肉、海鮮等配料在鐵板上煎成餅狀的庶民美食,可依個人口味添加起司、年糕等配料。煎熟後塗上濃厚醬汁、畫上美乃滋,再撒上海苔粉和柴魚片。大阪有許多著名的大阪燒餐廳,如難波的「美津の」以及連鎖店鶴橋風月等。不少店家還提供桌邊鐵板讓客人DIY自行翻烤大阪燒,增添參與感和趣味。
串炸(Kushikatsu)
串炸是大阪新世界地區發揚光大的平民美食。將各種食材(肉類、海鮮、蔬菜)串上竹籤,裹上麵衣後油炸至金黃酥脆,食用時蘸取特製的醬汁。要注意醬汁「只沾一次」 的禮節(剩下的醬汁要留給下一位客人)。知名串炸老店如「串カツだるま」深受觀光客歡迎。拿著酥脆的炸串配一杯冰涼生啤,最能體會大阪人豪爽直率的飲食風格。
燒肉(Yakiniku)
大阪的鶴橋地區以韓國城聞名,聚集了大量燒肉店。傍晚走在鶴橋商店街,空氣中瀰漫著烤肉香氣,令人食指大動。大阪的燒肉店提供各種和牛與豬牛內臟等燒烤選擇,客人可自行在桌上烤網燒製,蘸取醬汁品嚐。人氣名店例如「鶴一」等常出現排隊人潮。喜愛燒肉的老饕們在大阪絕對不能錯過到鶴橋大快朵頤一番。
河豚料理
提到河豚(俗稱河豚魚),不少人第一反應就是大阪。大阪可以說是河豚料理的重鎮,新世界和道頓堀一帶有許多專門的河豚料理店。河豚可生食(河豚刺身切得薄如蟬翼、如花瓣般鋪盤),也可拿來涮鍋或油炸。由於處理不當可能有劇毒,必須由持證廚師料理。雖然價格偏高,但對勇於嚐鮮的饕客而言,品嘗一次河豚大餐是不容錯過的獨特體驗。
拉麵與烏龍麵
雖然大阪的拉麵名氣不及福岡博多或北海道札幌,但依然有許多值得一試的在地拉麵店,如一蘭拉麵(在道頓堀設有分店)等。大阪拉麵以濃厚豚骨或醬油湯頭為主,配上厚切叉燒、蔥花、筍干等配料,風味十足。此外也不要錯過大阪的烏龍麵文化,其中著名的大阪きつねうどん(狐狸烏龍麵)會在麵上放一大片醃甜豆皮,相傳這種吃法發源於大阪。在道頓堀的老字號「今井」即可品嚐道地的大阪烏龍麵風味。
壽司與海鮮
大阪靠海不遠,海鮮供應豐富,在這裡可以享用到新鮮美味的握壽司、海鮮丼飯等。特別推薦品嚐具有大阪特色的押壽司(又稱箱壽司),這是一種將醋飯與鮮魚緊壓成形的壽司類型,口感紮實、風味獨特,常見品項有鯖魚押壽司(バッテラ壽司)等。黑門市場附近的「壽司榮」等店家有販售傳統大阪押壽司。對海鮮情有獨鍾的朋友,不妨清晨造訪大阪中央批發市場的場外市場,體驗當地人「生魚片早餐」的滋味。
甜點與零食手信
在享受完豐富的鹹食之後,也別忘了品嚐大阪的特色甜點與零食。最有名的當屬半熟起司蛋糕,如「りくろーおじさんの店」的起司蛋糕,每日新鮮出爐,口感鬆軟香濃,經常引來大批排隊人潮。還有Pablo起司塔、神戶風月堂的大阪限定蝴蝶酥等甜點可作為伴手禮選擇。喜愛零嘴的旅客,記得到超市和便利商店尋找大阪限定版的零食,如章魚燒口味仙貝、日清泡麵限定包等,這些都是深受歡迎的大阪手信。
大阪自由行攻略:購物篇
大阪旅遊購物選擇超級多元,各種伴手禮和商品選擇豐富。以下為您整理大阪自由行購物的重點:
繁華商圈購物
推薦首先逛心齋橋筋商店街與難波周邊。心齋橋筋長廊內匯集了從服飾、精品到藥妝店等各式店家,逛起來非常過癮。相鄰的御堂筋大道兩旁林立Gucci、LV等國際精品旗艦店。難波的高島屋百貨、道頓堀的唐吉訶德(Don Quijote,24小時營業)也是不能錯過的購物點。喜歡電子產品和動漫周邊的旅客,記得到難波東側的日本橋(俗稱電電街)挖寶,各種電器、模型玩具和漫畫同人誌一應俱全。
梅田百貨商圈
梅田是大阪旅行另一大購物熱區,以JR大阪站為中心分布多家大型商場。著名的有阪急百貨、阪神百貨、大丸百貨,以及現代化的Grand Front Osaka、LUCUA等購物中心。這些百貨公司樓層眾多,集合時尚服飾、化妝品、家居雜貨等各類品牌專櫃,非常適合熱愛逛街血拚的旅客。梅田的地下街也四通八達,連通多座車站和商場,是雨天照樣可以盡情購物的好去處。
藥妝與美妝
日本藥妝在亞洲旅客中相當有人氣。大阪街頭隨處可見大型連鎖藥妝店如松本清、唐吉訶德、SUNDRUG等。旅客喜歡購買的商品包括眼藥水、退燒貼片、腸胃藥,以及各大品牌推出的面膜、護膚品等。建議出發前列好清單,在藥妝店一次買齊心願品。部分藥妝店提供中文服務或有會說中文的店員,購物溝通不成問題。
特色伴手禮
大阪的伴手禮種類多樣、創意十足。食品類有前面提到的半熟起司蛋糕、Pablo起司塔、章魚燒仙貝等大阪限定美食。傳統點心如岩おこし、粟おこし(一種米花糖)也很有大阪風味。若想帶些紀念性高的禮品,可以考慮購入身穿彩色條紋吊帶褲的食い倒れ太郎公仔(大阪道頓堀著名吉祥物),或者印有大阪城、通天閣造型的鑰匙圈、磁鐵等紀念品。
折扣商場與Outlet
如果時間充裕,不妨去大阪近郊的Outlet逛逛。最受歡迎的是位於關西機場附近的臨空城Rinku Premium Outlets,匯集眾多國內外品牌的折扣店,還能吹著海風悠閒血拚。市區東北部的三井Outlet Park大阪鶴見交通也算方便,屬於室內型Outlet,天候不佳時也能輕鬆採購。在Outlet可以用較優惠的價格買到服飾、運動用品和行李箱等,滿足你的購物慾望。
購物退稅與優惠
在日本購物滿一定金額(一般為同一店家單日累計消費滿5000日圓含稅)即可享免稅待遇。結帳時出示護照,店員會當場為您辦理退稅(直接扣除消費稅)。請注意日本針對「一般物品」與「消耗品」的免稅門檻區分不同,需分開計算金額。建議準備一個行李袋裝好已辦理免稅的商品,以備出境時海關抽檢。另外,不少大型電器行和藥妝店會提供給外國旅客的專屬折扣券,可事先在官網下載或於旅遊服務中心索取,讓您的大阪購物之旅更加實惠。
大阪旅遊攻略:住宿篇
大阪有各式各樣的住宿選擇,從高級酒店到平價旅館一應俱全。以下介紹幾個大阪旅行時熱門的住宿區域:
心齋橋・難波區
這是觀光客最喜愛的住宿區域之一,位於大阪南區繁華中心地帶。住在心齋橋或難波,逛街、美食和夜生活都在步行範圍內。此區選擇眾多飯店、商務旅館及特色民宿,價位從平實到高檔都有。由於鄰近多條地鐵線和南海電鐵難波站,往返關西機場及前往京都、奈良都相當便利。
梅田(大阪站)區
梅田位於大阪北區,是大阪的交通樞紐所在地。JR大阪站和各線梅田站皆匯聚於此,適合規劃多日行程、串聯關西各地的旅客。梅田商圈商場林立,百貨公司和地下街相當繁華,各類餐廳選擇也很多。高級酒店多集中在此,如大阪麗思卡爾頓、希爾頓等,商務旅館和青年旅館也不少。
天王寺・新世界區
天王寺是大阪南部的另一個交通要地,JR天王寺站有Haruka特急直達關西機場,對於清晨航班或深夜抵達的旅客特別方便。附近有天王寺公園、動物園和通天閣等景點。該區住宿選擇相對實惠,一些連鎖商務旅館和膠囊旅館價格親民。緊鄰的新世界雖然夜晚熱鬧,但也有便宜的背包客棧,可以體驗大阪庶民風情。
大阪灣區(USJ)區
如果此行重點是造訪日本環球影城(USJ)或大阪海遊館,不妨考慮住在靠近大阪灣區的飯店。USJ周邊有多家官方主題酒店,步行即可抵達園區入口,對親子旅遊非常方便。海遊館所在的天保山也有飯店和特色露營車住宿可供選擇。不過灣區距離市中心較遠,若主要行程在市區,每天通勤時間需多預留一些。
新大阪站區
新大阪站是新幹線停靠站,如果您打算每天往返京都、神戶或更遠城市觀光,住在新大阪附近可以節省不少交通時間。新大阪站周圍有許多商務飯店,價格實惠且房間新穎乾淨。該區域相對安靜,但餐飲和商店選擇沒有市中心豐富。
去大阪旅行建議待幾天比較好?
如果是第一次造訪大阪,建議預留至少3天完整行程,以便遊覽主要景點和體驗美食。如果還想順道去京都、奈良等關西其他城市,5~7天會更充裕。許多旅客會安排5天4夜的行程,把大阪、京都、奈良一次玩遍。若時間有限,利用週末2天進行大阪自由行也能走馬看花逛重點區域,但行程會相對緊湊。
大阪旅遊的最佳季節是什麼時候?
大阪春秋兩季氣候最為宜人,是最佳旅遊時節。3~4月春天有櫻花可賞,氣溫溫和;10~11月秋高氣爽,銀杏與楓葉繽紛。夏季(7~8月)有精彩的祭典和煙火大會,但天氣炎熱濕潤,戶外活動可能稍嫌辛苦。冬季氣溫偏低,不過聖誕、新年期間的燈光秀和節慶活動也別具風情,很值得體驗。
第一次去大阪旅行,有推薦的行程路線嗎?
第一次大阪自由行可考慮如下安排:第1天逛心齋橋、道頓堀,品嚐道地美食並順便購物;第2天一早造訪大阪城公園和天守閣,下午前往海遊館,傍晚登梅田藍天大廈看夜景;第3天安排一整天遊玩日本環球影城。如果有第4天,則可加入奈良或京都一日遊。這樣的行程涵蓋了美食、城市景觀和主題樂園等重點,能夠較全面地體驗大阪旅遊精華,也是大阪自由行行程中很受歡迎的安排,您可以依此規劃屬於自己的大阪旅遊攻略行程。
去大阪自由行需要事先辦理簽證嗎?
這取決於您的國籍。持台灣、香港、澳門等地護照的旅客屬免簽對象,可在日本觀光停留最多90天而無需簽證。中國大陸護照持有人則需要在出發前申請日本旅遊簽證才能前往大阪旅行。建議您提前向日本駐當地的辦事處或領事館確認最新的簽證政策及入境規定。
大阪有哪些交通票券值得購買?
最推薦的是大阪周遊券卡(大阪Amazing Pass),有1日券和2日券可選,能無限次乘坐大阪市內主要地鐵、私鐵路線,並免費進入「大阪城天守閣」等多處知名景點,還能享多項優惠。如果在大阪停留時間較長,也可考慮儲值式的ICOCA交通卡(可搭乘各類交通工具)以及適用整個關西地區的關西周遊券(Kansai Thru Pass),可依行程需求選購使用。
從關西機場到大阪市區有哪些交通方式?
前往大阪市區主要有以下幾種:搭乘JR關空特急Haruka列車約50分鐘抵達大阪市區;搭乘南海電鐵特急Rap:t列車約35~40分鐘直達難波站;搭乘機場利木津巴士,可前往大阪站、難波等地(約1小時車程);預約機場接駁車或搭乘計程車(約50分鐘,費用較高)。大多數旅客會選擇經濟快捷的電車往返機場市區,這是展開大阪旅行最省時省錢的方式。
大阪旅遊有哪些必去的經典景點?
大阪經典必訪景點包括:具有歷史風情的大阪城天守閣,繁華不夜城道頓堀,歡樂滿點的日本環球影城(USJ),奇妙海底世界大阪海遊館,還有大阪懷舊象徵通天閣與新世界街區等。建議參考本文上述必玩景點章節,挑選您感興趣的景點納入行程。有時間的話也可以順道安排京都、奈良的一日遊,讓旅程更加豐富。
大阪旅遊有什麼道地美食一定要嚐嚐?
大阪有「天下廚房」的美譽,經典道地美食包括:章魚燒(大阪招牌小吃)、大阪燒(御好燒,鐵板煎餅)、串炸(新世界炸串)、蓬萊551豬肉包(超人氣肉包)、壽喜燒和燒肉(鶴橋燒肉街特產)等。甜點方面有半熟起司蛋糕和Pablo起司塔等著名甜品。建議空著肚子慢慢品嚐,體驗所謂「吃垮肚皮」的大阪美食文化,為您的大阪旅行留下美味回憶。
在大阪可以買到什麼特色伴手禮?
大阪的伴手禮選擇非常多元。人氣食品伴手禮有:章魚燒口味的米果、白色戀人巧克力夾心餅(大阪限定包裝)、各式KitKat巧克力當地限定口味等。藥妝保養類商品如眼藥水、面膜、軟膏藥品也是熱門清單。除此之外,還有印有通天閣或食倒れ太郎圖樣的紀念品、小金瓢簞等傳統小物,都別具巧思。預算充裕的話,也可考慮日本製的小家電或廚具(大阪堺市出產的刀具就非常有名),這些實用又有紀念價值的手信,能為您的大阪旅行畫下完美句點。
在大阪旅行時住宿選在哪裡比較方便?
常見的選擇有南區的心齋橋/難波(美食購物便利、夜生活豐富),北區的梅田/大阪站(交通樞紐、四通八達),天王寺(房價較實惠、直通機場),以及造訪USJ方便的大阪灣區等。第一次到大阪建議考慮住在難波或梅田區域,玩樂和交通都兼顧。如果規劃多次搭乘新幹線往返週邊城市,新大阪站附近的旅館也是不錯的選擇。各區域各有特色,您可以依照行程重點挑選最適合的住宿地點。
大阪適合帶小孩一起旅行嗎?
非常適合!大阪有許多親子友善景點:日本環球影城內有適合兒童的園區,海遊館也深受小朋友喜愛;天王寺動物園、大阪兒童樂園(Kids Plaza Osaka)等也是孩子們的歡樂天地。大阪的地鐵、公車等公共交通非常方便,推著嬰兒車出行也不困難。多數餐廳提供兒童餐具,高級商場和景點設有育嬰室。大阪人對孩子友善熱情,因此帶小孩自由行大阪可放心盡情玩樂,讓全家大小都能留下難忘的大阪旅行回憶。
可以從大阪安排去京都或奈良當天往返嗎?
當然可以。大阪到京都搭乘JR新快速電車約30分鐘即可抵達,非常方便;大阪到奈良搭乘近鐵電車約40分鐘直達奈良市區(或JR關西本線約45~50分鐘)。因此許多旅客選擇住宿大阪、白天往返京都或奈良觀光。一日之內遊覽京都或奈良的主要景點是可行的,也是大阪自由行行程中很受歡迎的安排。
在大阪旅遊時使用信用卡方便嗎?需要準備很多現金嗎?
大阪作為大都市,大型商場、連鎖餐廳、酒店等多數場合都可使用信用卡或行動支付。一些傳統小店、路邊攤仍以現金交易為主,所以建議攜帶適量日圓現金以備不時之需。便利商店的ATM可使用國際信用卡提領日圓。總的來說,在大阪刷卡消費相當方便,但備點現金更安心,足以應付您的大阪旅行期間各種消費需求。
大阪治安如何?自由行安全嗎?
大阪整體治安良好,是相對安全的觀光城市。主要商圈即便深夜也人潮不斷,路上巡警密度高,犯罪率不高。不過旅行中仍需保持基本的警覺:在人潮擁擠的場所留意個人物品,夜間避免獨自前往偏僻街區等。遵守當地法律規範(如勿邊走邊抽菸、不要大聲喧嘩),並保持常識上的安全措施,整體而言大阪旅行相當安全可靠。
去大阪旅遊有什麼需要注意的文化禮儀嗎?
日本人重視禮節與他人感受,在大阪旅遊時也應注意:搭乘電車、公車時保持安靜,避免大聲講電話;進入室內場所(如寺廟、民宅)前記得脫鞋;在公共場所不隨地抽菸、不亂丟垃圾;泡溫泉時須全裸入浴且事先將身體沖洗乾淨。大阪人相對熱情幽默,但基本禮貌仍不可少,例如與人碰撞時說聲「すみません」(不好意思)或接受幫助時道「ありがとう」(謝謝)等。尊重當地文化與習俗,您的大阪旅行將更加順利愉快。
你必須登入才能發表留言。